某新建工程,建筑面积15000m2,地下两层,地上六层,钢筋混凝土框架结构采用800mm 厚钢筋混凝土筏板基础,建筑总高25m。建设单位与A 施工总承包单位签订了总承包合同。在合同履行过程中,发生了下列事件中:
事件一:A 施工总承包单位在项目管理过程中,将防火门的制作与安装分包给了项目经理的亲戚王某人,并签订分包合同。与F 劳务公司进行了主体结构劳务分包洽谈,约定将模板和脚手架费用计入承包总价,并签订了劳务分包合同。经建设单位同意,F 劳务公司又将其承包的劳务部分的50%分包给B 劳务公司施工。
事件二:项目部在监理工程师的见证下进行了结构实体检验,结构实体检验的内容包括混凝土强度等。
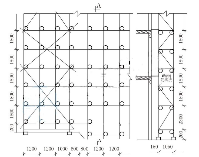
事件三:外装修施工时,施工单位搭设了扣件式钢管脚手架(如图)。架体搭设完成后进行了验收检查,并提出了整改意见。

事件四:楼层内配备了消防立管,管径50mm,在临时搭建的95m2木工加工棚内,配备了2 只10L 的灭火器。室外临时消防车道的净空高度为3.9m。
【问题】
1.指出事件一中总包单位和分包单位做法是否妥当并说明理由?
2.指出事件一中结构实体检验的其他内容。
3.指出事件二中脚手架搭设的错误之处。
4.指出事件三中的不妥之处,并写出正确做法。
正确答案及解析
正确答案
解析
1.(1)A 施工总承包单位在项目管理过程中,将防火门的制作与安装分包给了项目经理的亲戚王某人,并签订分包合同不妥当。
理由:按照相关规定,施工单位将工程分包给个人的属于违法分包。A 施工总承包单位将防火门的制作与安装分包给了王某人,属于违法分包。
(2)A 与F 劳务公司进行了主体结构劳务分包洽谈,约定将模板和脚手架费用计入承包总价,并签订了劳务分包合同不妥当。
理由:按照相关规定,劳务分包单位除计取劳务作业费用外,还计取主要建筑材料款、周转材料款和大中型施工机械设备费用的属于违法分包。所以A 与F 除了劳务分包外,将模版和脚手架计入承包总价属于违法分包。
(3)经建设单位同意,F 劳务公司又将其承包的劳务部分的50%分包给B 劳务公司施工不妥当。
理由:按照相关规定,劳务分包单位将其承包的劳务再分包的属于违法分包。所以F 劳务公司又将其承包的劳务部分的50%分包给B 劳务公司施工属于违法分包。
2.P286 钢筋保护层厚度、结构位置与尺寸偏差、合同约定项目以及必要的可检验的其他项目
3.不妥之处一:横向扫地杆放在了纵向扫地杆上方。
不妥之处二:当立杆的基础不在同一高度上时,高处纵向扫地杆只向低处延长了一跨。
(必须将高处的纵向扫地杆向低处延长两跨与立杆固定)
不妥之处三:脚手架的步距一般不超过1.8m,而本图中低处脚手架的最下一步步距为2.3m。
不妥之处四:使用只有钢筋的柔性连墙件将脚手架与建筑物连接。
(该脚手架宜采用刚性连墙件与建筑物可靠连接,亦可采用钢筋与顶撑配合使用的附墙方式,严禁使
用只有钢筋的柔性连墙件)
不妥之处五:首层位置连墙件的垂直间距大于4m。
不妥之处六:部分横向水平杆和横向扫地杆没有和立杆固定。
不妥之处七(八):立杆最上一步外,不应采用搭接的方式,而应采用对接,本图中,采用了搭接;剪刀撑斜杆应该采用搭接,不能采用对接连接。
4.(1)不妥之处一:楼层内配备了消防立管,管径50mm 不妥。
正确做法:临时消防立管的管径不得小于75mm。
(2)不妥之处二:木工加工棚内配备2 只10L 灭火器不妥。
正确做法:应该是每25 平方米配备1 只种类合适的灭火器,95 平方米应该配备4 只种类合适的灭火器。
(3)不妥之处三:室外临时消防车道的净空高度为3.9m。
正确做法:室外临时消防车道的净空高度不小于4m。
你可能感兴趣的试题
按照《建筑法》的规定,可以自愿投保的险种有()。
-
- A.机动车辆商业保险
- B.建筑工程一切险
- C.建筑职工工伤保险
- D.安装工程一切险
- E.建筑意外伤害险
- 查看答案
下列关于保险索赔的说法中,正确的是()。
-
- A.投保人进行保险索赔必须提供必要有效的证明
- B.投保人知道保险事故发生后,应当及时通知保险人
- C.保险单上载明的保险财产全部损失,应当按照全损进行保险索赔
- D.保险单上载明的保险财产部分损坏,但已无法修理,只能按照部分损坏进行索赔
- E.如果工程项目同时由多家保险公司承保,则应当平均分配索赔比例
- 查看答案
某住宅工程,建筑工程一切险的被保险人具体包括()。
-
- A.监理工程师
- B.路人
- C.钢筋工
- D.待入住人
- E.登高架设工
- 查看答案
保险事故发生后,依照保险合同请求保险人赔偿或者给付保险金时,投保人、被保险人或者受益人应当向保险人提供其所能提供的资料有()。
-
- A.保险单
- B.出险报告
- C.损失清单
- D.施救措施
- E.出险原因
- 查看答案
保险合同的当事人包括()。
-
- A.投保人
- B.保证人
- C.保险人
- D.被保险人
- E.受益人
- 查看答案