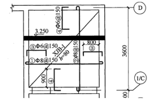
下图所示的现浇板配筋图,表示错误的是( )。

- A.①号钢筋为上部钢筋,直径8毫米
- B.②号钢筋为底部钢筋,间距为8毫米
- C.③号钢筋为上部钢筋,直径6毫米
- D.④号钢筋为底部钢筋,间距150毫米
正确答案及解析
正确答案
B
解析
本题考查的是结构施工图。φ表示直径,@表示间距;故φ6@150,①号钢筋表示直径为8毫米的钢筋,间距1500毫米布置;②号钢筋表示直径为8毫米的钢筋,间距1500毫米布置;③号钢筋表示直径为6毫米的钢筋,间距150毫米布置;④号钢筋表示直径为6毫米的钢筋,间距150毫米布置。
你可能感兴趣的试题
根据《建筑工程施工质量验收统一标准》 , 下列工程中, 属于分项工程的是( ) 。
-
- A.计算机机房工程
- B.轻钢结构工程
- C.土方开挖工程
- D.外墙防水工程
- 查看答案
根据《建筑工程施工质量验收统一验收标准》,下列工程中,属于分项工程的是()。
-
- A.电气工程
- B.钢筋工程
- C.屋面工程
- D.外墙防水工程
- 查看答案
在下列情形中,不构成缔约过失责任的是()。
-
- A.假借订立合同,恶意进行磋商
- B.故意隐瞒与订立合同有关的重要事实或者提供虚假情况
- C.有其他违背诚实信用原则的行为
- D.当事人在履行合同中没有全面地履行合同的内容
- 查看答案
根据《建设工程质量管理条例》, 在正常使用条件下, 供热与供冷系统的最低保修期限是( ) 个采暖期、 供冷期。
-
- A.1
- B.2
- C.3
- D.4
- 查看答案
根据《建筑法》,关于建筑工程承包的说法,正确的有()。
-
- A.承包单位应在其资质等级许可的业务范围内承揽工程
- B.大型建筑工程可由两个以上的承包单位联合共同承包
- C.除总承包合同约定的分包外,工程分包须经建设单位认可
- D.总承包单位就分包工程对建设单位不承担连带责任
- E.分包单位可将其分包的工程再分包
- 查看答案