工程背景资料如下。
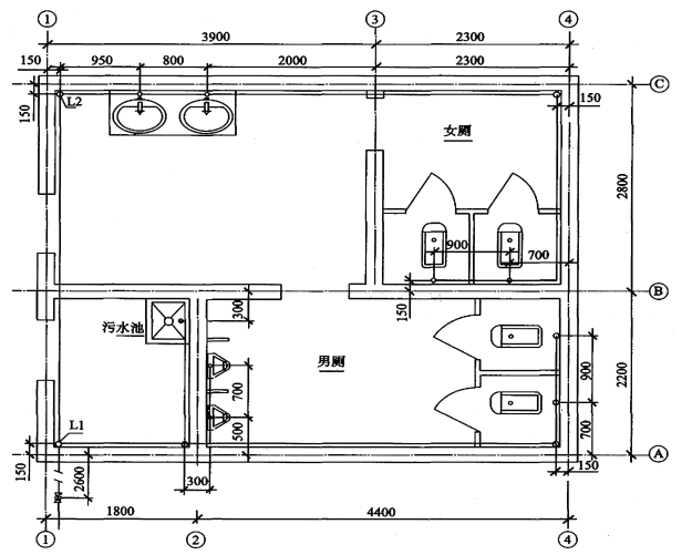
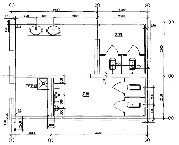
1. 某办公楼内卫生间的给水工程施工图如图3-5A和 图3-5B所示。


设计说明:
1. 办公楼共6层,层高3.6m,墙厚200mm。图中尺寸标注标高以米计,其他均以毫米计。
2. 管道采用PP-R塑料管及成品管件,热熔连接,成品管卡。
3. 阀门采用螺纹球阀QllF-16C,污水池上装铜质水嘴。
4. 成套卫生器具安装按标准图集要求施工,所有附件均随卫生器具配套供应。洗脸盆为单柄单孔台上式安装,大便器为感应式冲洗阀蹲式大便器,小便器为感应式冲洗阀壁挂式安装,污水池为成品落地安装。
5. 管道系统安装就位后,给水管道进行水压试验。
2. 根据《通用安装工程工程量计算规范》的规定,给水排水工程相关分部分项工程量清单项目的统一编码见 表3-32。

3. 塑料给水管定额相关数据见表3-33,表内费用均不包含增值税可抵扣进项税额。该工程的人工单价(包括普工、一般技工和高级技工)综合为100元/工日,管理费和利润分别占人工费的60%和30%。
表3-33 塑料给水管安装定额的相关数据资料表

4. 经计算该办公楼管道安装工程的分部分项工程人材机费用合计60万元,其中人工费占25%。单价措施项目中仅有脚手架项目,脚手架搭拆的人材机费用2.4万元,其中人工费占20%;总价措施项目费中的安全文明施工费用根据当地工程造价管理机构发布的规定按分部分项工程人工费的20%计取,夜间施工费、二次搬运费等其他总价措施项目费用合计按分部分项工程人工费的12%计取,总价措施费中人工费占30%。暂列金额6万元,不考虑计日工费用。规费按分部分项工程和措施项目费中全部人工费的25%计取;上述费用均不包含增值税可抵扣进项税额,增值税税率按9%计取。
正确答案及解析
正确答案
解析
【问题1】按照图3-5A和3-5B所示内容,按直埋(指敷设于室内地坪下的管段)、明敷(指沿墙面架空敷设于室内明处的管段)分别列式计算给水管道和阀门安装项目分部分项清单工程量。(注:管道工程量计算至支管与卫生器具相连的分支三通或末端弯头处止)。
(1)PP-R塑料给水管dn65,直埋:
2.60+0.15=2.75m
(2)PP-R塑料给水管dn50,直埋:
(2.20+2.80-0.15-0.15)+(0.60+0.60)=5.90m
明敷:
3.60×3+1.30+3.60×3+0.40=23.30m
(3)PP-R塑料给水管dn40,明敷:
3.60+3.60=7.20m
(4)PP-R塑料给水管dn32,明敷:
3.60+3.60=7.20m
L1支管
[(1.80+4.40-0.15×2)+(0.70+0.90-0.15)+(1.30-0.8)]×6=47.10m
L2支管
[(3.90+2.30-0.15×2)+(2.80-0.15×2)+ (0.70+0.90-0.15)+(0.80-0.40)]×6=61.50m
合计:7.20+47.10+61.50=115.80m
(5)PP-R塑料给水管dn25,明敷:
[(1.30-1.00)+(2.20-0.15-0.30)+(0.70+0.50-0.15)]×6=18.60m


【问题2】根据《通用安装工程工程量计算规范》和《计价规范》的规定,编制管道、阀门、卫生器具(污水池除外)安装项目的分部分项工程量清单。



【问题3】根据表3-32给出的相关内容,编制dn32PP-R室内明敷塑料给水管道分部分项工程的综合 单价分析表。


【问题4】编制该办公楼管道系统单位工程的招标控制价汇总表。
分部分项工程费=60.00+60.00×25%×(60%+30%)
=73.50万元
其中人工费=60.00×25%=15.00万元
脚手架搭拆费=2.40+2.40×20%×(60%+30%)
=2.83万元
安全文明施工费=15.00×20%=3.00万元
其他措施项目费=15.00×12%=1.80万元
措施项目费=2.83+3.00+1.80=7.63万元
其中人工费=2.40×20%+(3.00+1.80)×30%
=1.92万元
其他项目费=6.00万元
规费=(15.00+1.92)×25%=4.23万元
税金=(73.50+7.63+6.00+4.23)×9%=8.22万元
招标控制价=73.50+7.63+6.00+4.23+8.22
=99.58万元
表3-36 单位工程招标控制价汇总表


经计算该办公楼管道安装工程的分部分项工程人材机费用合计60万元,其中人工费占25%。单价措施项目中仅有脚手架项目,脚手架搭拆的人材机费用2.4万元,其中人工费占20%;总价措施项目费中的安全文明施工费用根据当地工程造价管理机构发布的规定按分部分项工程人工费的20%计取,夜间施工费、二次搬运费等其他总价措施项目费用合计按分部分项工程人工费的12%计取,总价措施费中人工费占30%。暂列金额6万元,不考虑计日工费用。规费按分部分项工程和措施项目费中全部人工费的25%计取;上述费用均不包含增值税可抵扣进项税额,增值税税率按9%计取。
你可能感兴趣的试题
根据《招标投标法实施条例》,依法必须进行招标的项目可以不进行招标的情形是()。
-
- A.受自然环境限制只有少量潜在投标人
- B.需要采用不可替代的专利或者专有技术
- C.招标费用占项目合同金额的比例过大
- D.因技术复杂只有少量潜在投标人
- 查看答案
建设工程项目采用Partnering模式的特点有( )。
-
- A.Partnering协议是工程建设参与各方共同签署的协议
- B.Partnering协议是工程合同文件的组成部分
- C.Partnering模式需要工程建设参与各方高层管理者的参与
- D.Partnering模式强调资源共享和风险分担
- E.Partnering模式可以独立于其他承包模式而存在
- 查看答案
根据《工程造价咨询企业管理办法》,工程造价咨询企业可被处1万元以上3万元以下罚款的情形是( )。
-
- A.跨地区承接业务不备案的
- B.出租.出借资质证书的
- C.设立分支机构未备案的
- D.提供虚假材料申请资质的
- 查看答案
关于Partnering模式的说法,正确的是( )。
-
- A.Partnering协议是业主与承包商之间的协议
- B.Partnering模式是一种独立存在的承发包模式
- C.Partnering模式特别强调工程参建各方基层人员的参与
- D.Partnering协议不是法律意义上的合同
- 查看答案
下列工程中,属于分部工程的是( )
-
- A.既有工厂的车间扩建工程
- B.工业车间的设备安装工程
- C.房屋建筑的装饰装修工程
- D.基础工程中的土方开挖工程
- 查看答案