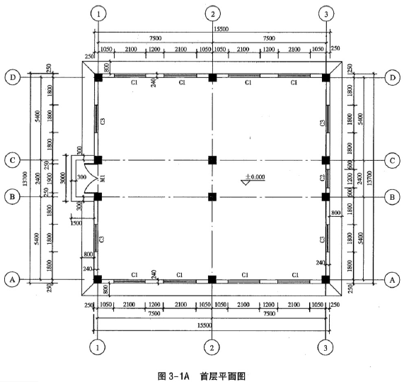
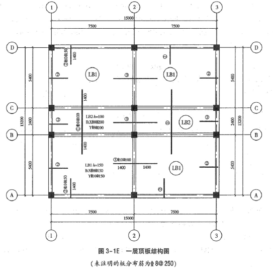
某钢筋混凝土框架结构建筑物,共四层,首层层高4.2m,第二至四层层高为3.9m,首层平面图、柱独立基础配筋图、柱网布置及配筋图、一层顶梁结构图、一层顶板结构图分别如图3-1A、图3-1B、图3-1C、图3-1D、图3-1E所示。柱顶的结构标高为15.87m,外墙为240mm厚蒸压加气混凝土砌块墙,首层墙体砌筑在顶面标高为-0.20的钢筋混凝土基础梁上,M5.0混合砂浆砌筑。M1为1900mm×3300mm的铝合金平开门,靠外墙外侧安装,门框为240mm;C1为2100mm×2400mm的铝合金推拉窗;C2为1200mm×2400mm的铝合金推拉窗;C3为1800mm×2400mm的铝合金推拉窗;窗台高900mm。门窗洞口上设钢筋混凝土过梁,截面为240mm×180mm,过梁两端各伸出洞边250mm。
已知本工程抗震设防烈度为6度,混凝土结构的抗震等级为四级,梁、板、柱的混凝土均采用C30预拌混凝土;钢筋的保护层厚度:板为15mm,梁柱为25mm,基础为35mm。楼板厚有150mm、100mm两种。块料地面自下而上的做法依次为:素土夯实;300mm厚3:7灰土夯实;60mm厚C15素混凝土垫层;素水泥浆一道;25mm厚1:3干硬性水泥砂浆结合层;800mm×800mm全瓷地面砖水泥砂浆粘贴,白水泥砂浆擦缝。木质踢脚线高150mm,基层为9mm厚胶合板,面层为榉木装饰板,上口钉木线,独立柱均需做踢脚线。柱面的装饰做法为:木龙骨榉木饰面包方柱,木龙骨为25mm×25mm,中距300mm×300mm,基层为9mm厚胶合板,面层为3mm厚红榉木装饰板。天棚吊顶为轻钢龙骨矿棉板平面天棚,U形轻钢龙骨中距为450mm×450mm,面层为矿棉吸声板,首层吊顶底距离地面3.4m。





问题(计算结果保留2位小数):
依据《房屋建筑与装饰工程工程量计算规范》GB50854-2013的要求计算建筑物首层的过梁、砌块墙、矩形柱(框架柱)、矩形梁(框架梁)、平板、块料地面、木质踢脚线、柱面(包括靠墙柱)装饰、吊顶天棚、矩形梁模板及平板模板的工程量。根据招标文件的要求,模板清单单独列出。将计算过程及结果填入分部分项工程和单价措施项目工程量计算表3-1中。
正确答案及解析
正确答案
解析
问题1.
3-1 分部分项工程和单价措施项目工程量计算表



你可能感兴趣的试题
根据《招标投标法实施条例》,依法必须进行招标的项目可以不进行招标的情形是()。
-
- A.受自然环境限制只有少量潜在投标人
- B.需要采用不可替代的专利或者专有技术
- C.招标费用占项目合同金额的比例过大
- D.因技术复杂只有少量潜在投标人
- 查看答案
建设工程项目采用Partnering模式的特点有( )。
-
- A.Partnering协议是工程建设参与各方共同签署的协议
- B.Partnering协议是工程合同文件的组成部分
- C.Partnering模式需要工程建设参与各方高层管理者的参与
- D.Partnering模式强调资源共享和风险分担
- E.Partnering模式可以独立于其他承包模式而存在
- 查看答案
根据《工程造价咨询企业管理办法》,工程造价咨询企业可被处1万元以上3万元以下罚款的情形是( )。
-
- A.跨地区承接业务不备案的
- B.出租.出借资质证书的
- C.设立分支机构未备案的
- D.提供虚假材料申请资质的
- 查看答案
关于Partnering模式的说法,正确的是( )。
-
- A.Partnering协议是业主与承包商之间的协议
- B.Partnering模式是一种独立存在的承发包模式
- C.Partnering模式特别强调工程参建各方基层人员的参与
- D.Partnering协议不是法律意义上的合同
- 查看答案
下列工程中,属于分部工程的是( )
-
- A.既有工厂的车间扩建工程
- B.工业车间的设备安装工程
- C.房屋建筑的装饰装修工程
- D.基础工程中的土方开挖工程
- 查看答案