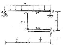
图示结构简支梁AB与悬臂梁DE用铰链与弹性杆CD相连。已知q、l、a、EI、E1A,则CD杆的内力为:


- A.见图A
- B.见图B
- C.见图C
- D.见图D
正确答案及解析
正确答案
B
解析
提示:设AB梁C点挠度为fc,是由均布荷载q和CD杆的轴力N共同作用产生的;设DE梁D点的挠度为fD,是由CD杆轴力N作用产生的;设CD杆缩短量为Δa,则有几何变形协调方程fc-fD =Δa。代入物理方程(查表),即可求出轴力N。
你可能感兴趣的试题
TCP/IP协议是Internet中计算机之间通信所必须共同遵循的一种:
-
- A.信息资源
- B.通信规定
- C.软件
- D.硬件
- 查看答案
已知矩形基础底面的压力分布为三角形,最大边缘压力为Pmax,最小边缘压力为零,基础的宽度为B,长度为L,基础底面积为A,抵抗矩为W,传至基础底面的竖向力为N。下列的表述中符合上述基础底面压力分布特征的正确说法( )。

-
- A.见图A
- B.见图B
- C.见图C
- D.见图D
- 查看答案
基础尺寸与荷载如图3-6所示,下列哪些选项是正确的?


-
- A.见图A
- B.见图B
- C.见图C
- D.见图D
- 查看答案
已知矩形基础底面的压力为线性分布,宽度方向最大边缘压力为基底平均压力的1. 2 倍,基础的宽度为B,长度为L,基础底面积为A,抵抗矩为W,传至基础底面的竖向力为N,力矩为M,间下列哪些说法是正确的? ( )

-
- A.见图A
- B.见图B
- C.见图C
- D.见图D
- 查看答案
下列()是多年冻土融沉系数的正确表达式。(其中,e1为融沉前的孔隙比,e2为融沉后的孔隙比)

-
- A.见图A
- B.见图B
- C.见图C
- D.见图D
- 查看答案