题目详情

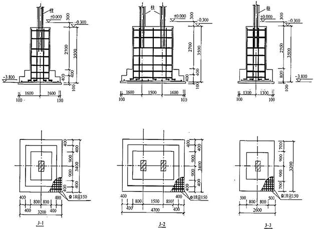
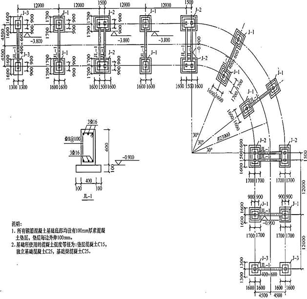
某热电厂煤仓燃煤架空运输坡道基础平面及相关技术参数,如图1“燃煤架空运输坡道基础平面图”和图2“基础详图”所示。

土建建设工程计量与计价实务,章节练习,基础复习,章节基础

图1 燃煤架空运输坡道基础平面图

土建建设工程计量与计价实务,章节练习,基础复习,章节基础

图2 基础详图

【问题】

1.根据工程图纸及技术参数,按《房屋建筑与装饰工程工程量计算规范》(GB 50854—2013)的计算规则,在“工程量计算表”中列式计算现浇混凝土基础垫层、现浇混凝土独立基础(-0.3m以下部分)、现浇混凝土基础梁、现浇构件钢筋、现浇混凝土模板五项分部分项工程的工程量。根据已有类似项目结算资料测算,各钢筋混凝土基础钢筋参考含量分别为:独立基础80kg/m3,基础梁100kg/m3。(基础梁施工是在基础回填土回填至-1.00m时再进行基础梁施工)

2.根据问题1的计算结果及给定的项目编码、综合单价,按《建设工程工程量清单计价规范》(GB 50500—2013)的要求,编制“分部分项工程和单价措施项目清单与计价表”。

3.假如招标工程量清单中,“分部分项工程和单价措施项目清单与计价表”中单价措施项目中模板项目的清单不单独列项,按《房屋建筑与装饰工程工程量计算规范》(GB 50854—2013)中工作内容的要求,模板费应综合在相应分部分项项目中,根据“分部分项工程和单价措施项目清单与计价表”的计算结果,列式计算相应分部分项工程的综合单价。

4.根据问题1的计算结果,按定额规定混凝土损耗率1.5%,列式计算该架空运输坡道土建工程的基础部分总包方与商品混凝土供应方各强度等级混凝土的结算用量。

(计算结果保留2位小数)

正确答案及解析

正确答案
解析

1.工程量计算表

土建建设工程计量与计价实务,章节练习,基础复习,章节基础

2.分部分项工程和单价措施项目清单与计价表

土建建设工程计量与计价实务,章节练习,基础复习,章节基础

3.各分部分项工程的综合单价计算如下:

①现浇混凝土基础垫层综合单价=(分部分项工程费+单价措施费)/清单工程量=(14512.5+861.84)/32.25≈476.72(元/m3);

②现浇混凝土独立基础综合单价=(分部分项工程费+单价措施费)/清单工程量=(189236.5+29258.88)/357.05≈611.95(元/m3);

③现浇混凝土基础梁综合单价=(分部分项工程费+单价措施费)/清单工程量=(12016.1+7750.08)/22.46≈880.06(元/m3)。

4.C15商品混凝土的结算量:32.25×(1+1.5%)≈32.73(m3);

C25商品混凝土的结算量:(357.05+22.46)×(1+1.5%)≈385.20(m3)。

你可能感兴趣的试题

单选题

根据《国务院关于投资体制改革的决定》实行备案制的项目是()。

  • A.政府直接投资的项目
  • B.采用资金注入方式的政府投资项目
  • C.政府核准的投资项目目录外的企业投资项目
  • D.政府核准的投资项目目录内的企业投资项目
查看答案
单选题

根据《国务院关于投资体制改革的决定》,对于采用直接投资和资本金注入方式的政府投资项目,除特殊情况外,政府部门不再审批()。

  • A.开工报告
  • B.初步设计
  • C.工程概算
  • D.可行性研究报告
查看答案
单选题

在下列情形中,不构成缔约过失责任的是()。

  • A.假借订立合同,恶意进行磋商
  • B.故意隐瞒与订立合同有关的重要事实或者提供虚假情况
  • C.有其他违背诚实信用原则的行为
  • D.当事人在履行合同中没有全面地履行合同的内容
查看答案
多选题

根据《民法典》,下列各类合同中,属于无效合同的有()。

  • A.恶意串通损害第三人利益的合同
  • B.一方以欺诈手段订立的合同
  • C.一方乘人之危订立的合同
  • D.损害社会公共利益的合同
  • E.订立合同时显失公平的合同
查看答案
单选题

根据《建筑工程施工质量验收统一标准》 , 下列工程中, 属于分项工程的是( ) 。

  • A.计算机机房工程
  • B.轻钢结构工程
  • C.土方开挖工程
  • D.外墙防水工程
查看答案

相关题库更多 +