题目详情

某写字楼标准层电梯厅共20套,施工企业中标的“分部分项工程和单价措施项目清单与计价表”见表4-60,现根据图4-13“标准层电梯厅楼地面铺装尺寸图”、图4-14“标准层电梯厅吊顶布置尺寸图”所示的电梯厅土建装修竣工图及相关技术参数,按下列问题要求,编制电梯厅的竣工结算。

表4-60 分部分项工程和单价措施项目清单与计价表

土建建设工程计量与计价实务,章节练习,基础复习,章节基础

土建建设工程计量与计价实务,章节练习,基础复习,章节基础

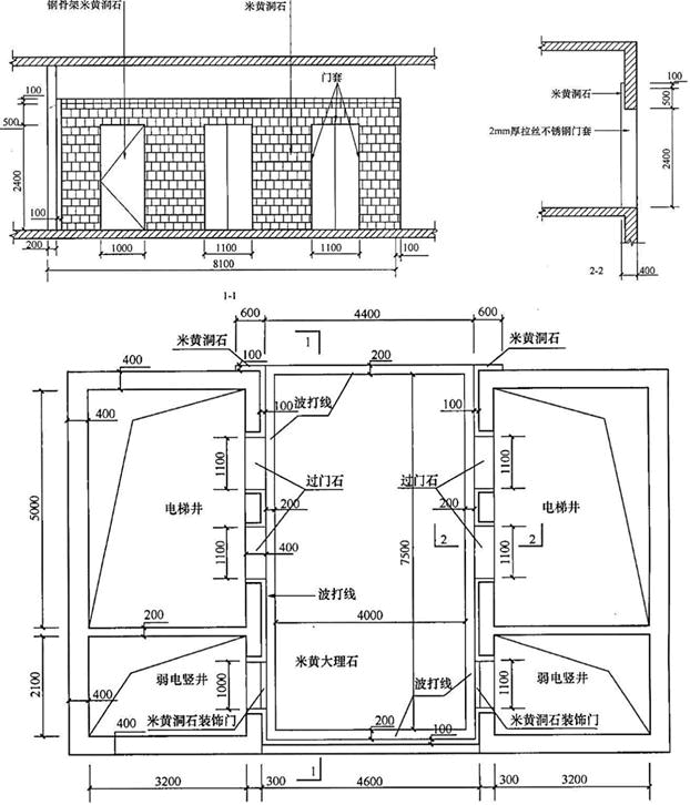
图4-13 标准层电梯厅楼地面铺装尺寸图

土建建设工程计量与计价实务,章节练习,基础复习,章节基础

15.图4-14 标准层电梯厅吊顶布置尺寸图

说明:

(1)本写字楼标准层电梯厅共20套。

(2)墙面干挂石材高度为3000mm,其石材面层外皮距结构面尺寸为100mm。

(3)强弱电竖井门为钢骨架石材装饰门(主材同墙体),其门口不设过门石。

(4)电梯厅墙面装饰做法延展到走廊600mm。

表4-61 装修做法表

土建建设工程计量与计价实务,章节练习,基础复习,章节基础

【问题】

1.根据工程竣工图纸及技术参数,按《房屋建筑与装饰工程工程量计算规范》(GB 50854—2013)的计算规则,在表4-62“工程量计算表”中,列式计算该20套电梯厅楼地面、墙面(装饰高度3000mm)、天棚、门和门套等土建装饰分部分项工程的结算工程量(竖井装饰门内的其他项目不考虑)。

表4-62 工程量计算表

土建建设工程计量与计价实务,章节练习,基础复习,章节基础

2.根据问题1的计算结果及合同文件中“分部分项工程和单价措施项目清单与计价表”的相关内容,按《建设工程工程量清单计价规范》(GB 50500—2013)的要求,在表4-63“分部分项工程和单价措施项目清单与计价表”中编制该土建装饰工程结算。

表4-63 分部分项工程和单价措施项目清单与计价表

土建建设工程计量与计价实务,章节练习,基础复习,章节基础

3.按该分部分项工程竣工结算金额1600000.00元,单价措施项目清单结算金额为18000.00元取定。安全文明施工费按分部分项工程结算金额的3.5%计取,其他项目费为零,人工费占分部分项工程及措施项目费的13%,规费按人工费的21%计取,营业税及附加按11%计取。按《建设工程工程量清单计价规范》(GB 50500—2013)的要求,列式计算安全文明施工费、措施项目费、规费、营业税金及附加费,并在表4-64“单位工程竣工结算汇总表”中编制该土建装饰工程结算。(计算结果保留两位小数)

表4-64 单位工程竣工结算汇总表

土建建设工程计量与计价实务,章节练习,基础复习,章节基础

正确答案及解析

正确答案
解析

某写字楼标准层电梯厅共20套,施工企业中标的“分部分项工程和单价措施项目清单与计价表”见表1,现根据图1“标准层电梯厅楼地面铺装尺寸图”、图2“标准层电梯厅吊顶布置尺寸图”所示的电梯厅土建装修竣工图及相关技术参数,按下列问题要求,编制电梯厅的竣工结算。

表1 分部分项工程和单价措施项目清单与计价表

土建建设工程计量与计价实务,章节练习,基础复习,章节基础

土建建设工程计量与计价实务,章节练习,基础复习,章节基础

图1 标准层电梯厅楼地面铺装尺寸图

土建建设工程计量与计价实务,章节练习,基础复习,章节基础

15.图2 标准层电梯厅吊顶布置尺寸图

说明:

(1)本写字楼标准层电梯厅共20套。

(2)墙面干挂石材高度为3000mm,其石材面层外皮距结构面尺寸为100mm。

(3)强弱电竖井门为钢骨架石材装饰门(主材同墙体),其门口不设过门石。

(4)电梯厅墙面装饰做法延展到走廊600mm。

表1 装修做法表

{图3}

【问题】

1.根据工程竣工图纸及技术参数,按《房屋建筑与装饰工程工程量计算规范》(GB 50854—2013)的计算规则,在表2“工程量计算表”中,列式计算该20套电梯厅楼地面、墙面(装饰高度3000mm)、天棚、门和门套等土建装饰分部分项工程的结算工程量(竖井装饰门内的其他项目不考虑)。

表2 工程量计算表

{图4}

2.根据问题1的计算结果及合同文件中“分部分项工程和单价措施项目清单与计价表”的相关内容,按《建设工程工程量清单计价规范》(GB 50500—2013)的要求,在表3“分部分项工程和单价措施项目清单与计价表”中编制该土建装饰工程结算。

表3 分部分项工程和单价措施项目清单与计价表

{图5}

3.按该分部分项工程竣工结算金额1600000.00元,单价措施项目清单结算金额为18000.00元取定。安全文明施工费按分部分项工程结算金额的3.5%计取,其他项目费为零,人工费占分部分项工程及措施项目费的13%,规费按人工费的21%计取,营业税及附加按11%计取。按《建设工程工程量清单计价规范》(GB 50500—2013)的要求,列式计算安全文明施工费、措施项目费、规费、营业税金及附加费,并在表4“单位工程竣工结算汇总表”中编制该土建装饰工程结算。(计算结果保留两位小数)

表4 单位工程竣工结算汇总表

{图6}

你可能感兴趣的试题

单选题

根据《国务院关于投资体制改革的决定》实行备案制的项目是()。

  • A.政府直接投资的项目
  • B.采用资金注入方式的政府投资项目
  • C.政府核准的投资项目目录外的企业投资项目
  • D.政府核准的投资项目目录内的企业投资项目
查看答案
单选题

根据《国务院关于投资体制改革的决定》,对于采用直接投资和资本金注入方式的政府投资项目,除特殊情况外,政府部门不再审批()。

  • A.开工报告
  • B.初步设计
  • C.工程概算
  • D.可行性研究报告
查看答案
单选题

在下列情形中,不构成缔约过失责任的是()。

  • A.假借订立合同,恶意进行磋商
  • B.故意隐瞒与订立合同有关的重要事实或者提供虚假情况
  • C.有其他违背诚实信用原则的行为
  • D.当事人在履行合同中没有全面地履行合同的内容
查看答案
多选题

根据《民法典》,下列各类合同中,属于无效合同的有()。

  • A.恶意串通损害第三人利益的合同
  • B.一方以欺诈手段订立的合同
  • C.一方乘人之危订立的合同
  • D.损害社会公共利益的合同
  • E.订立合同时显失公平的合同
查看答案
单选题

根据《建筑工程施工质量验收统一标准》 , 下列工程中, 属于分项工程的是( ) 。

  • A.计算机机房工程
  • B.轻钢结构工程
  • C.土方开挖工程
  • D.外墙防水工程
查看答案

相关题库更多 +