题目详情

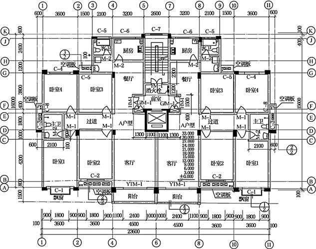
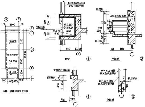
某小高层住宅楼建筑部分设计如图1(a)、(b)所示,共12层,每层层高均为3m,电梯机房与楼梯间部分凸出屋面。墙体除注明外均为200mm厚加气混凝土墙,轴线位于墙中。外墙采用50mm厚聚苯板保温。楼面做法为20mm厚水泥砂浆抹面压光。楼层钢筋混凝土板厚100mm,内墙做法为20mm厚混合砂浆抹面压光。为简化计算,首层建筑面积按标准层建筑面积计算。阳台为全封闭阳台,⑤和⑦轴上混凝土柱超过墙体宽度部分建筑面积忽略不计,门窗洞口尺寸如表2所示,工程做法如表3所示。

土建建设工程计量与计价实务,章节练习,基础复习,章节基础

图1(a)标准层平面图

土建建设工程计量与计价实务,章节练习,基础复习,章节基础

图1(b)电梯、楼梯间屋顶平面图及节点图

表2门窗洞口尺寸

土建建设工程计量与计价实务,章节练习,基础复习,章节基础

表3工程做法

土建建设工程计量与计价实务,章节练习,基础复习,章节基础

【问题】

1.依据《建筑工程建筑面积计算规范》(GB/T 50353—2005)的规定,计算小高层住宅楼的建筑面积。将计算过程、计量单位及计算结果填入表“建筑面积计算”。

2.依据《建设工程工程量清单计价规范》附录B的工程量计算规则,计算小高层住宅楼二层卧室1、卧室2、主卫的楼面工程量以及墙面工程量,将计算过程、计量单位及计算结果按要求填入表“分部分项工程量计算”。

3.结合图纸及表“工程做法”,进行分部分项工程量清单的项目特征描述,将描述和分项计量单位填入表“分部分项工程量清单”。

正确答案及解析

正确答案
解析

1.(1)根据《建筑工程建筑面积计算规范》(GB/T 50353—2013),相关建筑面积计算规则有:

①建筑物的建筑面积应按自然层外墙结构外围水平面积之和计算。结构层高在2.20m及以上的,应计算全面积;结构层高在2.20m以下的,应计算1/2面积。

②建筑物顶部有围护结构的楼梯间、水箱间、电梯机房等,结构层高在2.20m及以上者应计算全面积;结构层高不足2.20m者应计算1/2面积。

③建筑物的外墙外保温层,应按其保温材料的水平截面积计算,并计入自然层建筑面积。

④建筑物内的室内楼梯间、电梯井、观光电梯井、提物井、管道井、通风排气竖井、垃圾道、附墙烟囱应按建筑物的自然层计算。

⑤在主体结构外的阳台,建筑物的阳台均应按其水平投影面积的1/2计算。

⑥勒脚、附墙柱、垛、台阶、墙面抹灰、装饰面、镶贴块料面层、装饰性幕墙、空调室外机搁板(箱)、飘窗、构件、配件、宽度在2.10m及以内的无柱雨篷和顶盖高度达到或超过两个楼层的无柱雨篷不计算建筑面积。

(2)根据以上规则计算小高层住宅楼的建筑面积,计算过程及结果如表所示。

分部分项工程量计算

土建建设工程计量与计价实务,章节练习,基础复习,章节基础

2.根据《房屋建筑与装饰工程工程量计算规范》(GB 50854—2013)的工程量计算规则

分部分项工程量计算

土建建设工程计量与计价实务,章节练习,基础复习,章节基础

3.分部分项工程量清单

土建建设工程计量与计价实务,章节练习,基础复习,章节基础

你可能感兴趣的试题

单选题

根据《国务院关于投资体制改革的决定》实行备案制的项目是()。

  • A.政府直接投资的项目
  • B.采用资金注入方式的政府投资项目
  • C.政府核准的投资项目目录外的企业投资项目
  • D.政府核准的投资项目目录内的企业投资项目
查看答案
单选题

根据《国务院关于投资体制改革的决定》,对于采用直接投资和资本金注入方式的政府投资项目,除特殊情况外,政府部门不再审批()。

  • A.开工报告
  • B.初步设计
  • C.工程概算
  • D.可行性研究报告
查看答案
多选题

根据《民法典》,下列各类合同中,属于无效合同的有()。

  • A.恶意串通损害第三人利益的合同
  • B.一方以欺诈手段订立的合同
  • C.一方乘人之危订立的合同
  • D.损害社会公共利益的合同
  • E.订立合同时显失公平的合同
查看答案
单选题

在下列情形中,不构成缔约过失责任的是()。

  • A.假借订立合同,恶意进行磋商
  • B.故意隐瞒与订立合同有关的重要事实或者提供虚假情况
  • C.有其他违背诚实信用原则的行为
  • D.当事人在履行合同中没有全面地履行合同的内容
查看答案
单选题

根据《建筑工程施工质量验收统一标准》 , 下列工程中, 属于分项工程的是( ) 。

  • A.计算机机房工程
  • B.轻钢结构工程
  • C.土方开挖工程
  • D.外墙防水工程
查看答案

相关题库更多 +