题目详情

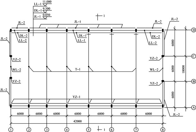
某拟建项目机修车间,厂房设计方案采用预制钢筋混凝土排架结构,其上部结构系统如图1所示,结构体系中现场预制标准构件和非标准构件的混凝土强度等级、设计控制参考钢筋含量等见表1。

土建建设工程计量与计价实务,章节练习,基础复习,章节基础

土建建设工程计量与计价实务,章节练习,基础复习,章节基础

表1 现场预制构件一览表另经查阅国

土建建设工程计量与计价实务,章节练习,基础复习,章节基础另经查阅国家标准图集,所选用的薄腹屋面梁混凝土用量为3.11m3/根(厂房中间与两端山墙处屋面梁的混凝土用量相等,仅预埋铁件不同);所选用T形吊车梁混凝土用量,车间两端部为1.13m3/根,其余为1.08m3/根。

【问题】

1.根据上述条件,按《房屋建筑与装饰工程工程量计算规范》(GB 50854—2013)的计算规则,在答题纸表4-23中,列式计算该机修车间上部结构预制混凝土柱、梁工程量及根据设计提供的控制参考钢筋含量计算相关钢筋工程量。

2.利用问题1的计算结果和以下相关数据,按《建设工程工程量清单计价规范》(GB 50500—2013)、《房屋建筑与装饰工程工程量计算规范》(GB 50854—2013)的要求,在表4-24中,编制该机修车间上部结构分部分项工程和单价措施项目清单与计价表。

已知相关数据为:①预制混凝土矩形柱的清单编码为010509001,本车间预制混凝土柱单件体积<3.5m3,就近插入基础杯口,人材机合计513.71元/m3;②预制混凝土基础梁的清单编码为010510001,本车间基础梁就近地面安装,单件体积<1.2m3,人材机合计402.98/m3,③预制混凝土柱顶连系梁的清单编码为010510001,本车间连系梁单件体积<0.6m3,安装高度<12m,人材机合计423.21元/m3;④预制混凝土T形吊车梁的清单码为010510002,本车间T形吊车梁单件体积<1.2m3,安装高度<9.5m,人材机合计530.38元/m3;⑤预制混凝土薄腹屋面梁的清单编码为010511003,本车间薄腹屋面梁单件体积<3.2m3,安装高度13m,人材机合计561.35元/m3;⑥预制混凝土构件钢筋的清单编码为010515002,本车间所用钢筋直径为6~25mm,人材机合计6018.70元/t。以上项目管理费均以人材机为基数按10%计算,利润均以人材机和管理费合计为基数按5%计算。

3.利用以下有关数据,在表4-25中,编制该机修车间土建单位工程招标控制价汇总表。

已知相关数据为:①一般土建分部分项工程费785000.00元;②措施项目费用62800.00元,其中安全文明施工费26500.00元;③其他项目费用为屋顶防水专业分包暂估70000.00元;④规费以分部分项工程、措施项目、其他项目之和为基础计取,综合费率为5.28%;⑤税率为3.477%。(计算结果保留两位小数)

正确答案及解析

正确答案
解析

1.根据上述条件,按《房屋建筑与装饰工程工程量计算规范》(GB 50854—2013)的计算规则,列式计算并填写分部分项工程量清单计算表如表所示。

分部分项工程量清单计算表

土建建设工程计量与计价实务,章节练习,基础复习,章节基础

2.该机修车间上部结构分部分项工程和单价措施项目清单与计价表如表所示。

分部分项工程量清单与计价表

土建建设工程计量与计价实务,章节练习,基础复习,章节基础

3.该机修车间土建单位工程招标控制价汇总表如表所示。

单位工程招标控制价汇总表

土建建设工程计量与计价实务,章节练习,基础复习,章节基础

你可能感兴趣的试题

单选题

根据《国务院关于投资体制改革的决定》实行备案制的项目是()。

  • A.政府直接投资的项目
  • B.采用资金注入方式的政府投资项目
  • C.政府核准的投资项目目录外的企业投资项目
  • D.政府核准的投资项目目录内的企业投资项目
查看答案
单选题

根据《国务院关于投资体制改革的决定》,对于采用直接投资和资本金注入方式的政府投资项目,除特殊情况外,政府部门不再审批()。

  • A.开工报告
  • B.初步设计
  • C.工程概算
  • D.可行性研究报告
查看答案
多选题

根据《民法典》,下列各类合同中,属于无效合同的有()。

  • A.恶意串通损害第三人利益的合同
  • B.一方以欺诈手段订立的合同
  • C.一方乘人之危订立的合同
  • D.损害社会公共利益的合同
  • E.订立合同时显失公平的合同
查看答案
单选题

在下列情形中,不构成缔约过失责任的是()。

  • A.假借订立合同,恶意进行磋商
  • B.故意隐瞒与订立合同有关的重要事实或者提供虚假情况
  • C.有其他违背诚实信用原则的行为
  • D.当事人在履行合同中没有全面地履行合同的内容
查看答案
单选题

根据《建筑工程施工质量验收统一标准》 , 下列工程中, 属于分项工程的是( ) 。

  • A.计算机机房工程
  • B.轻钢结构工程
  • C.土方开挖工程
  • D.外墙防水工程
查看答案

相关题库更多 +