题目详情

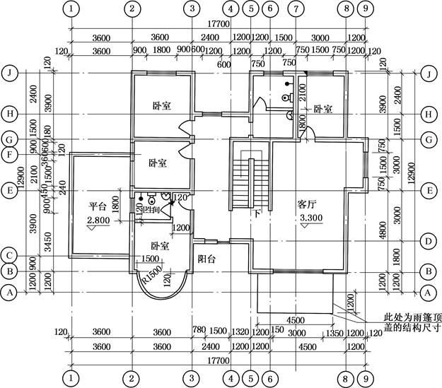
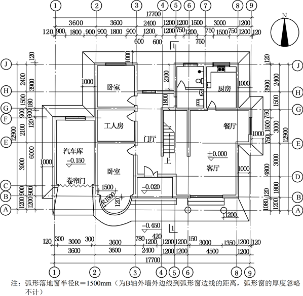
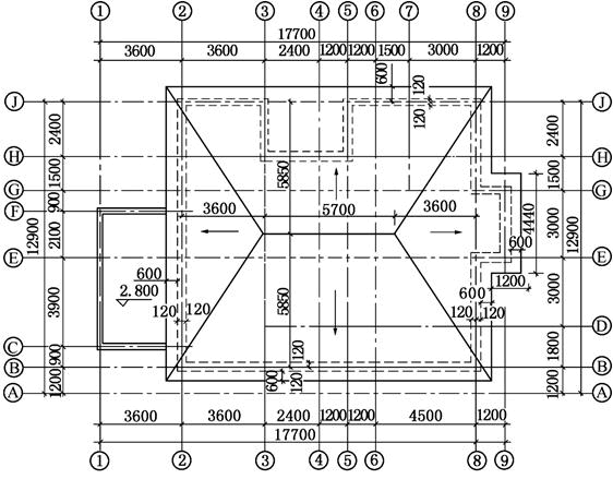
某别墅部分设计如图所示。

土建建设工程计量与计价实务,章节练习,基础复习,章节基础

(a)一层平面图(1∶100)

土建建设工程计量与计价实务,章节练习,基础复习,章节基础

(b)二层平面图(1∶100)

土建建设工程计量与计价实务,章节练习,基础复习,章节基础

(c)屋顶平面图(1∶100)

土建建设工程计量与计价实务,章节练习,基础复习,章节基础

(d)南立面图(1∶100)

土建建设工程计量与计价实务,章节练习,基础复习,章节基础

(e)剖面图(1∶100)图 某别墅部分设计图墙体除注明外均为240mm厚。坡屋面构造做法:钢筋混凝土层面板表面清扫干净,素水泥浆一道,20mm厚,1∶3水泥砂浆找平,刷热防水膏,采用20mm厚,1∶3干硬性水泥砂浆防水保护层,25mm厚,1∶1∶4水泥石灰砂浆铺瓦屋面。卧室地面构造做法:素土夯实,60mm厚C10混凝土垫层,20mm厚,1∶2水泥砂浆抹面压光。卧室楼面构造做法:150mm现浇钢筋混凝土楼板,素水泥浆一道,20mm厚,1∶2水泥砂浆抹面压光。

【问题】

1.依据《建筑工程建筑面积计算规范》(GB/T 50353—2005)的规定,计算别墅的建筑面积。将计算过程及计量单位、计算结果填入表“建筑面积计算表”。

表 建筑面积计算表

土建建设工程计量与计价实务,章节练习,基础复习,章节基础

2.依据《建设工程工程量清单计价规范》计算卧室(不含卫生间)楼面、地面工程量,计算坡层面工程量。将计算过程及结果填入表分部分项工程量计算表。

表 分部分项工程量计算表

土建建设工程计量与计价实务,章节练习,基础复习,章节基础

3.依据《建设工程工程量清单计价规范》编制卧室楼面、地面、坡屋面工程的分部分项工程量清单,填入表分部分项工程量清单(水泥砂浆楼地面的项目编码为020101001,瓦屋面的项目编码为010701001)。

表 分部分项工程量清单表

土建建设工程计量与计价实务,章节练习,基础复习,章节基础

4.依据《建设工程工程量清单计价规范》编制“单位工程费汇总表”。假设:别墅部分项目的分部分项工程量清单计价合计207822元,其中人工费41560元;措施项目清单计价合价48492元;其他项目清单计价合计12123元;规费以人工费为基数计取,费率为30%;税率为3.413%。将有关数据和相关内容填入表单位工程费汇总表。

表 单位工程费汇总表

土建建设工程计量与计价实务,章节练习,基础复习,章节基础

(计算结果均保留两位小数)

正确答案及解析

正确答案
解析

1.(1)《建筑工程建筑面积计算规范》(GB/T 50353—2013)中与本题相关的面积计算规则有:

①建筑物的建筑面积应按自然层外墙结构外围水平面积之和计算。结构层高在2.20m及以上的,应计算全面积;结构层高在2.20m以下的,应计算1/2面积。

②在主体结构外的阳台,建筑物的阳台均应按其水平投影面积的1/2计算。

③雨篷结构的外边线至外墙结构外边线的宽度超过2.1m者,应按雨篷结构板的水平投影面积的1/2计算。有柱雨篷与无柱雨篷的计算方法一致。

(2)建筑面积计算表

土建建设工程计量与计价实务,章节练习,基础复习,章节基础

2.分部分项工程量计算表

土建建设工程计量与计价实务,章节练习,基础复习,章节基础

3.分部分项工程量清单表

土建建设工程计量与计价实务,章节练习,基础复习,章节基础

4.单位工程费汇总表

土建建设工程计量与计价实务,章节练习,基础复习,章节基础

你可能感兴趣的试题

单选题

根据《国务院关于投资体制改革的决定》实行备案制的项目是()。

  • A.政府直接投资的项目
  • B.采用资金注入方式的政府投资项目
  • C.政府核准的投资项目目录外的企业投资项目
  • D.政府核准的投资项目目录内的企业投资项目
查看答案
单选题

根据《国务院关于投资体制改革的决定》,对于采用直接投资和资本金注入方式的政府投资项目,除特殊情况外,政府部门不再审批()。

  • A.开工报告
  • B.初步设计
  • C.工程概算
  • D.可行性研究报告
查看答案
多选题

根据《民法典》,下列各类合同中,属于无效合同的有()。

  • A.恶意串通损害第三人利益的合同
  • B.一方以欺诈手段订立的合同
  • C.一方乘人之危订立的合同
  • D.损害社会公共利益的合同
  • E.订立合同时显失公平的合同
查看答案
单选题

在下列情形中,不构成缔约过失责任的是()。

  • A.假借订立合同,恶意进行磋商
  • B.故意隐瞒与订立合同有关的重要事实或者提供虚假情况
  • C.有其他违背诚实信用原则的行为
  • D.当事人在履行合同中没有全面地履行合同的内容
查看答案
单选题

根据《建筑工程施工质量验收统一标准》 , 下列工程中, 属于分项工程的是( ) 。

  • A.计算机机房工程
  • B.轻钢结构工程
  • C.土方开挖工程
  • D.外墙防水工程
查看答案

相关题库更多 +