题目详情

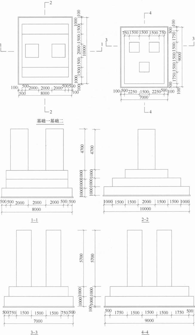
某城市188m大跨度预应力拱形钢桁架结构体育场馆,下部钢筋混凝土基础平面布置图及基础详图设计如图1“基础详图”所示,其中基础一18个,基础二16个。中标该项目的施工企业考虑为大体积混凝土施工,为加强成本核算和清晰掌握该分部分项工程实际成本,拟采用实物量法计算该分部分项工程费用目标管理控制价。该施工企业内部相关单位工程量人、材、机消耗定额及实际掌握项目所在地除税价格见下表1“企业内部单位工程量人、材、机消耗定额”。

土建建设工程计量与计价实务,章节练习,基础复习,章节基础

土建建设工程计量与计价实务,章节练习,基础复习,章节基础

问题:

1.根据该体育场馆基础设计图纸、技术参数按《房屋建筑与装饰工程工程量计算规范》GB50854-2013的计算规则,列式计算该大跨度体育场馆钢筋混凝土基础分部分项工程量。已知钢混凝土独立基础综合钢筋含量为72.50kg/m3,钢筋混凝土矩形基础柱综合钢筋含量为118.70kg/m3。

2.根据问题1的计算结果、参考资料列式计算该分部分项工程人工、材料、机械使用费消耗量,并计算该分部分项工程和措施项目人、材、机费,施工企业结合相关方批准的施工组织设计测算的项目单价措施人、材、机费为640000.00元;施工企业内部规定安全文明措施及其他总价措施费按分部分项工程人、材、机费及单价措施人、材、机费之和的2.50%计算。

3.若施工过程中,钢筋混凝土独立基础和矩形基础柱使用的C30混凝土变更为C40混凝土(消耗定额同C30混凝土,除税价480.00元/m3),其他条件均不变,根据问题1、2的条件和计算结果,列式计算C40商品混凝土消耗量、C40与C30商品混凝土除税价差,由于商品混凝土价差产生的该分部分项工程和措施项目人、材、机增加费。

4.假定该钢筋混凝基础分部分项工程人、材、机费为6600000.00元,其中人工费占13%;企业管理费按人、材、机费的6%计算,利润按人、材、机费和企业管理之和的5%计算,规费按人工费的21%计算,增值税税率按9%计取,请编制该钢筋混凝土基础分部分项工程费用目标管理控制价。

(上述各问题中提及的各项费用均不包含增值税可抵扣进项税额,所有计算结果均保留两位小数)

正确答案及解析

正确答案
解析

问题1:

(1)C15基础垫层

基础一:(8+0.2)×(10+0.2)×0.1×18=150.55(m3)

基础二:(7+0.2)×(9+0.2)×0.1×16=105.98(m3)

150.55+105.98=256.53(m3)

(2)C30独立基础

基础一:18×[8×10×1+(8-0.5×2)×(10-1×2)×1+(8-0.5×2)×(10-2.5×2)×1]=3078(m3)

基础二:16×[7×9×1+(7-0.5×2)×(9-0.5×2)×1]=16×111=1776(m3)

3078+1776=4854(m3)

(3)C30矩形柱

①2×2×4.7×18×2=676.80(m3)

②1.5×1.5×5.7×16×3=615.60(m3)

676.80+615.60=1292.40(m3)

(4)钢筋

独立基础:4854×72.5/1000=351.92(t)

矩形柱:1292.4×118.70/1000=153.41(t)

351.92+153.41=505.33(t)

问题2:

(1)人工消耗量:256.53×0.4+4854×0.6+1292.40×0.7+6×505.33=6951.67(工日)

(2)C15商品混凝土:256.53×1.02=261.66(m3)

(3)C30商品混凝土:4854×1.02+1292.40×1.02=6269.33(m3)

(4)钢筋:505.33×1.03=520.49(t)

(5)其他辅助材料费:8×256.53+12×4854+13×1292.40+117×505.33=136225.05(元)

(6)机械使用费:1.6×256.53+3.9×4854+4.2×1292.40+115×505.33=82882.08(元)

(7)单价措施人材机费=640000(元)

(8)安全文明措施及其他总价措施费人材机费

(6951.67×110+261.66×400+6269.33×460+520.49×3600+136225.05+82882.08+640000)×2.5%=162152.77(元)

土建建设工程计量与计价实务,章节练习,基础复习,章节基础

问题3:

(1)C40商品混凝土消耗量:(4854+1292.40)×1.02=6269.33(m3)

(2)除税价差:480-460=20(元/m3)

(3)分部分项和措施项目人材机增加费

①6269.33×20=125386.60(元)

②125386.60×2.5%=3134.67(元)

125386.60+3134.67=128521.27(元)

问题4:

土建建设工程计量与计价实务,章节练习,基础复习,章节基础

人工费=6600000×13%=858000(元)

企业管理费=6600000×6%=396000(元)

利润=(6600000+396000)×5%=349800(元)

规费=858000×21%=180180(元)

增值税=(6600000+396000+349800+180180)×9%=7525980×9%=677338.20(元)

目标管理控制价合计=7525980+677338.20=8203318.20(元)

你可能感兴趣的试题

单选题

根据《国务院关于投资体制改革的决定》实行备案制的项目是()。

  • A.政府直接投资的项目
  • B.采用资金注入方式的政府投资项目
  • C.政府核准的投资项目目录外的企业投资项目
  • D.政府核准的投资项目目录内的企业投资项目
查看答案
单选题

根据《国务院关于投资体制改革的决定》,对于采用直接投资和资本金注入方式的政府投资项目,除特殊情况外,政府部门不再审批()。

  • A.开工报告
  • B.初步设计
  • C.工程概算
  • D.可行性研究报告
查看答案
单选题

在下列情形中,不构成缔约过失责任的是()。

  • A.假借订立合同,恶意进行磋商
  • B.故意隐瞒与订立合同有关的重要事实或者提供虚假情况
  • C.有其他违背诚实信用原则的行为
  • D.当事人在履行合同中没有全面地履行合同的内容
查看答案
多选题

根据《民法典》,下列各类合同中,属于无效合同的有()。

  • A.恶意串通损害第三人利益的合同
  • B.一方以欺诈手段订立的合同
  • C.一方乘人之危订立的合同
  • D.损害社会公共利益的合同
  • E.订立合同时显失公平的合同
查看答案
单选题

根据《建筑工程施工质量验收统一验收标准》,下列工程中,属于分项工程的是()。

  • A.电气工程
  • B.钢筋工程
  • C.屋面工程
  • D.外墙防水工程
查看答案

相关题库更多 +