某办公楼需要重新装修,A 公司承接办公楼(地上30 层、地下2 层)的电梯安装工程,工程有32 层32 站曳引式电梯8 台,工期为90 天,开工时间为3 月18 日,其中6 台客梯需智能群控,2 台消防电梯需在4 月30 日交付使用,并通过消防验收,在工程后期作为施工电梯使用。电梯井道的脚手架、机房及层门预留孔的安全技术措施由建筑公司实施。
安装公司项目部进场后,将拟安装的电梯工程,书面告知了电梯安装工程所在地的特种设备安全监督部门,并按合同要求编制了电梯施工方案和电梯施工进度计划。电梯安装前,项目部对机房的设备基础、井道的建筑结构进行检测,土建施工质量均符合电梯安装要求:曳引电机、轿厢、层门等部件的安全技术要求,消防点滴施工进度计划完成,并验收合格。
施工进度到客梯单机试运行调试时,有一台客梯轿厢晃动厉害,经检查时候导轨的安装精度没达到技术要求,安装人员对导轨重新校正固定,单机试运行合格,但导轨的校正固定,使单机试运行比原工序多用了3 天,其后面的工序(群控试运行调试、竣工验收)均按工序时间实施,电梯安装工程比合同工期提前完工,交付业主。
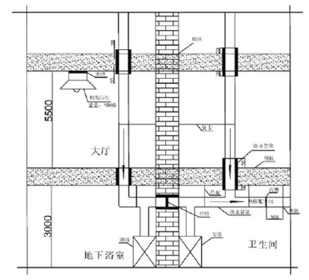
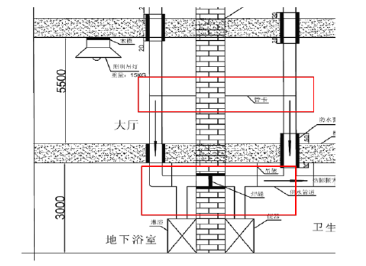
B 公司承接此办公楼的给水管道工程,监理工程师在检查时发现现场诸多问题(如图),要求施工单位限期整改。

B 公司承接此办公楼的给水管道安装工程,包括自来水管道、中水管道、热水管道等(如图)。图中浴室和卫生间位于地下一层监理工程师在检查时发现现场诸多问题,要求施工单位限期整改。

问题:
1. 电梯安装前,项目部应提供哪些安装资料?
2. 消防电梯从开工到验收合格用了多少天?电梯安装工程合同比合同工期提前了多少天?
3. 导轨的安装要求是什么?
4. 电梯完工后应向哪个机构申请消防验收?写出电梯整机安装要求。
5. 指出室内装饰装修详图中不妥之处,并写出正确做法。
正确答案及解析
正确答案
解析
1.
P207 1H414050 电梯工程施工技术
安装单位提供的安装资料:
① 安装许可证和安装告知书,许可证范围能够覆盖所施工电梯的相应参数;
② 审批手续齐全的施工方案;
③ 施工现场作业人员持有的特种设备作业证;
2. 消防电梯从开工到验收合格用了多少天?电梯安装工程合同比合同工期提前了多少天?

通过电梯施工进度计划图可知,消防电梯的验收合格时间是4 月21 日,而工程的开工时间是3 月18 日,按照日历3 月、5 月都应该是31 天,不过电梯施工进度计划图中显示5月份是30 天,所以此题应该是按照每月30 天考虑的,所以消防电梯从开工到验收合格共用了13+21=34 天。
由于题目已知单机试运行比原工序时间多用了3 天,所以其紧后工序群控试运行调试就推迟3 天开始,导致最后竣工验收比原工序事件推迟了3 天,所以电梯安装工程实际的结束时间是6 月3 日。由于开工时间是3 月18 日,合同工期是90 天,合同工期的竣工时间应该是6 月17 日,因此实际竣工时间比合同工期提前了14 天(6 月3 日/6 月17 日)。
3. P210 1H414050 电梯工程施工技术
(1)导轨安装位置必须符合土建布置图要求。
(2)导轨支架在井道壁上的安装应固定可靠。预埋件应符合土建布置图要求。锚栓(膨胀螺栓等)固定应在井道壁的混凝土构件上使用,其连接强度与承受振动的能力应满足电梯产品设计要求,混凝土构件的压缩强度应符合土建布置图要求。
(3)轿厢导轨和设有安全钳的对重(平衡重)导轨工作面接头处不应有连续缝隙。导轨接头处台阶如超过规定应修平。
4.
P222 1H414060 消防工程施工技术
电梯完工后应向消防机构申请消防验收。
P211 1H414050 电梯工程施工技术
电梯整机安装要求
(1)当三相电源中任何一相断开或任何两相错接时,应有断相、错相保护功能,使电梯不发生危险故障。
(2) 动力电路、控制电路、安全电路必须有与负载匹配的短路保护装置;动力电路必须有过载保护装置。
(3)限速器上的轿厢(对重、平衡重)下行标志必须与轿厢(对重、平衡重)的实际下行方向相符。限速器铭牌上的额定速度、动作速度必须与被检电梯相符。限速器必须与其型式试验证书相符。
(4)安全钳、缓冲器、门锁装置必须与其型式试验证书相符
(5)上、下极限开关必须是安全触点,在端站位置进行动作试验时必须动作正常。在轿厢或对重(如果有)接触缓冲器之前必须动作,且缓冲器完全压缩时,保持动作状态。
(6)限速器绳张紧开关,液压缓冲器复位开关等必须动作可靠。
(7)限速器与安全钳电气开关在联动试验中必须动作可靠,且应使驱动主机立即制动。
(8)对瞬时式安全钳,轿厢应载有均匀分布的额定载重量;对渐进式安全钳,轿厢应载有均匀分布的125%额定载重量。
(9)层门与轿门的试验时,每层层门必须能够用三角钥匙正常开启,当一个层门或轿门非正常打开时,电梯严禁启动或继续 运行
(10)曳引式电梯的曳引能力试验时,轿厢在行程上部范围空载上行及行程下部范围载有125额定载重量下行,分别停层3 次以上,轿厢必须可靠地制停。
(11)电梯安装后应进行运行试验;轿厢分别在空载、额定载荷工况下,按产品设计规定的每小时启动次数和负载持续率各运行1000 次(每天不少于8h),电梯应运行平稳、制动可靠、连续运行无故障。
5.指出室内装饰装修详图中不妥之处,并写出正确做法。
(1)“供水管道安装在楼板内的套管顶部与装饰地面平齐”不妥。
正确做法:供水管道安装在楼板内的套管其顶部高出装饰地面20mm。

(2)“供水管道安装在卫生间楼板内的套管底部伸出楼板底面30mm”不妥。
正确做法: 安装在卫生间的套管底部应与楼板底面相平。

(3)“穿过楼板的套管与管道之间缝隙,用防水套管密封”不妥。
正确做法:穿过楼板的套管与管道之间缝隙,用阻燃密实材料和防水油膏填实,端面光滑。

二、建筑管道施工技术要点
4. 配合土建工程预留、预埋
(3)管道穿过楼板时应设置金属或塑料套管。安装在楼板内的套管,其顶部高出装饰地面20mm,安装在卫生间及厨房内的套管,其顶部应高出装饰地面50mm,底部应与楼板底面相平,套管与管道之间缝隙宜用阻燃密实材料和防水油膏填实,且端面应光滑。
(4)管道穿过墙壁时应设置金属或塑料套管。套管两端应与饰面相平,套管与管道之间缝隙宜用阻燃密实材料填实,且端面应光滑。
(4)“供水管道吊架垂直安装”不妥。
正确做法:供水管道的吊架,吊杆应向热膨胀的反方向偏移 安装。

(5)“焊缝设置在穿墙套管内”不妥。
正确做法:管道焊缝不应设置在套管内。

(6)“支、吊架与沟槽式接头的净间距为100mm”不妥。
正确做法: 沟槽式连接水平钢管支、吊架应设置在管接头两侧和三通、四通、弯头、异径管等管件上下游连接接头的两侧,支、吊架与接头的净间距不宜小于150mm ,且不宜大于300mm。

(7)“立管管卡数量错误。”。
正确做法:地下室层高为3 米,至少要设置1 个管卡来固定立管。大厅层高大于5m。
应设置不少于2 个管卡来固定立管。

5. 管道支架制作安装
(3)管道支架安装时,应与管道接触紧密,间距合理,固定牢固,滑动方向或热膨胀方向应符合规范要求。
(4)室内给水金属立管管道支架设置:楼层高度小于或等于5m 每层必须设置不少于1个,楼层高度大于5m 每层设置不少于2 个,安装位置匀称,管道支架高度距地面为1.5m~1.8m,同一区域内管架设置高度应一致。
(5)沟槽式连接水平钢管支、吊架应设置在管接头(刚性接头、挠性接头,支管接头)两侧和三通、四通、弯头、异径管等管件上下游连接接头的两侧,支、吊架与接头的净间距不宜小于150mm ,且不宜大于300mm。
(8)“照明吊灯用木模固定”不妥。
正确做法:照明吊灯严禁采用木模固定,应采用预埋吊钩或螺栓固定。其固定螺栓或螺钉不应少于2 个,灯具应紧贴饰面。

你可能感兴趣的试题
某安装单位中标一综合机电总承包安装工程,合同造价3000 万元,项目施工内容包括:
净化空调系统(洁净度等级为N7)、储罐安装等。合同工期12 个月,2014 年8 月5 日开工。
安装单位在施工前,对并联水泵出口接管图纸进行了施工优化,其中水平主管和立管的接管方式如下:

在空调系统调试中,安装单位发现风管在系统启动时产品颤动且有噪声,经查是风管制作原因导致,安装单位采取相应措施处理后系统恢复正常。风管连接时,安装单位采用S 形插条连接,安装完毕后进行漏风量检测,漏风量严重超标。监理单位要求安装单位整改。
安装单位的技术人员对储罐的罐底焊缝采用真空箱法进行严密性试验,并对罐壁采用充水方式进行强度及严密性试验。
该工程在2015 年8 月5 日竣工验收,建设单位在2017 年8 月26 日发现空调不制冷后要求安装单位进行质量保修。
问题:
1.并联水泵出口水平主管与立管的接管方式是否正确?说明理由。画出正确的接管示意图(单线图)。
2.此工程的风管系统属于何种压力等级?分析造成风管颤动及噪声的制作原因。
3.分析风管漏风量严重超标的原因,应如何整改。
4.真空箱法的试验最低负压值是多少?简述罐壁的强度及严密性试验充水方法和合格标准。
5.安装单位是否应对空调系统进行质量保修?说明理由。写出该空调工程质保期的结束时间。
- 查看答案
 
某制氧站经过招投标,由具有安装资质的公司承担全部机电安装工程和主要机械设备的采购。安装公司进场后,按合同工期,工作内容,设备交货时间,编制了施工进度计划如表1。
表1施工进度计划

在计划实施过程中,电气安装滞后10天,调试滞后3天。
A公司在设备采购时,在性价比方面对制造厂商进行了咨询,从中选择了备选厂商,进行了邀请招标。
在制氧机法兰和管道法兰连接时,施工班组未对法兰的偏差进行检验,即进行法兰连接,遭到项目工程师的制止。
整个工程施工完毕后,经过中间交接,建设单位组织了联动试运行,生产线各项指标均达到要求。
问题:
1.根据表1计算总工期需多少天?电气安装滞后及调试滞后是否影响总工期?并分别说明理由。
2.在选择供应商时,应考虑哪些因素?
3.制氧机在固定后,应如何与管道连接?
4.联动试运行生产线应达到什么要求?
- 查看答案
 
工业安装工程中,分部分项工程质量验收记录的检查评定结论由()编写。
- 
                
- A.建设单位
 - B.监理单位
 - C.设计单位
 - D.施工单位
 
 - 查看答案
 
A 公司承接某机电安装工程,工程内容有:冷水机组、配电柜、水泵等设备的安装和冷水管道、电缆排管及电缆施工。施工中发生了如下事件:
事件1:班组领料时,材料员按照材料计划进行发料,并在管端进行了涂色标记,但由于施工班组管理不善,在使用时还是发生了混料现象,不得不重新进行检验。
事件2:由于冷水管道有些采用国外进口材料,A 公司此前从没有遇到过,由于工期较紧,项目部抽调2 名技术较好的焊工进行相应练习后,就进行管道施焊。
事件3:由于本工程所使用的都是低压电缆,A 公司在使用前进行了封端密封试验,施工后进行了相关试验,确保电缆施工质量符合要求。
事件4:质检员在进行检查时,发现冷冻水泵进出管道布置如图1 所示,遂要求施工班组进行整改。

【问题】:
1.材料混料问题出现在哪个环节,为什么?
2.冷水管道焊接的做法是否正确,应如何进行?
3.电缆封端严密性试验的方法是什么?电缆还应做哪些试验?
4.说明正确的接管形式,请画出正确的接管示意图?
- 查看答案
 
某水泥厂新建一条日产5000t新型干法水泥生产线,其中机电安装工程以GC模式进行了公开招标,共有A、B、C、D、E五家公司参与投标。评标委员会由6人组成,其中有建设单位邀请的4名经济技术专家和2名建设单位代表,在评标过程中,由于A公司为私营企业,评标委员会要求A公司如果中标需多交10%的质量保证金,A公司提出抗议,但未被采纳。B公司认真研究了招标文件,在施工组织设计编制中,重点描述了企业信誉、施工装备、技术水平等自身优势,争取对评标人员有较大的吸引力,但优点不够突出,最终由准备更加充分的C公司中标。生产线变电设备使用油浸式变压器,由于变压器本身较重,运输时变压器内未充绝缘油,开箱检查时发现变压器内部潮湿,绝缘电阻值达不到要求,后经干燥处理达到了设计要求。C公司经二次搬运、吊装、就位、吊芯检查及干燥等工作后,对其绕组连同套管一起的直流电阻测量、极性和组别测量等进行了多项试验。并顺利完成安装任务。粉末设备使用的φ2.2m×7m球磨机重30t,项目部根据现场情况编制了详细的安全专项吊装方案。吊装方案拟采用两台50t汽车吊抬吊,根据现场情况和起重机的特性曲线,选择了合适的起重机。破碎机的动力设备使用30KW交流异步电动机,电机安装完成后,进行单机试运行,发现电机噪声较大,后经检查发现有2组垫铁在设备运转后被振松动,与设备接触不良造成。后经技术处理,运转正常。所有电气和设备安装调试完成后,由建设单位组织相关单位进行了试运行,顺利通过验收。
【问题】
1.指出本案例中评标委员会的构成存在哪些问题?A公司提出的抗议是否合理?说明理由。
2.案例中油浸式变压器运输时应采取的特定措施有哪些?变压器交接时还应进行哪些试验?
3.简述流动式起重机特性曲线的含义。
4.针对本案例中的垫铁松动可以采取哪些措施?影响电机安装精度的因素还有哪些?
- 查看答案